Fr / En
Projets   News   Bureau

Maison M_2

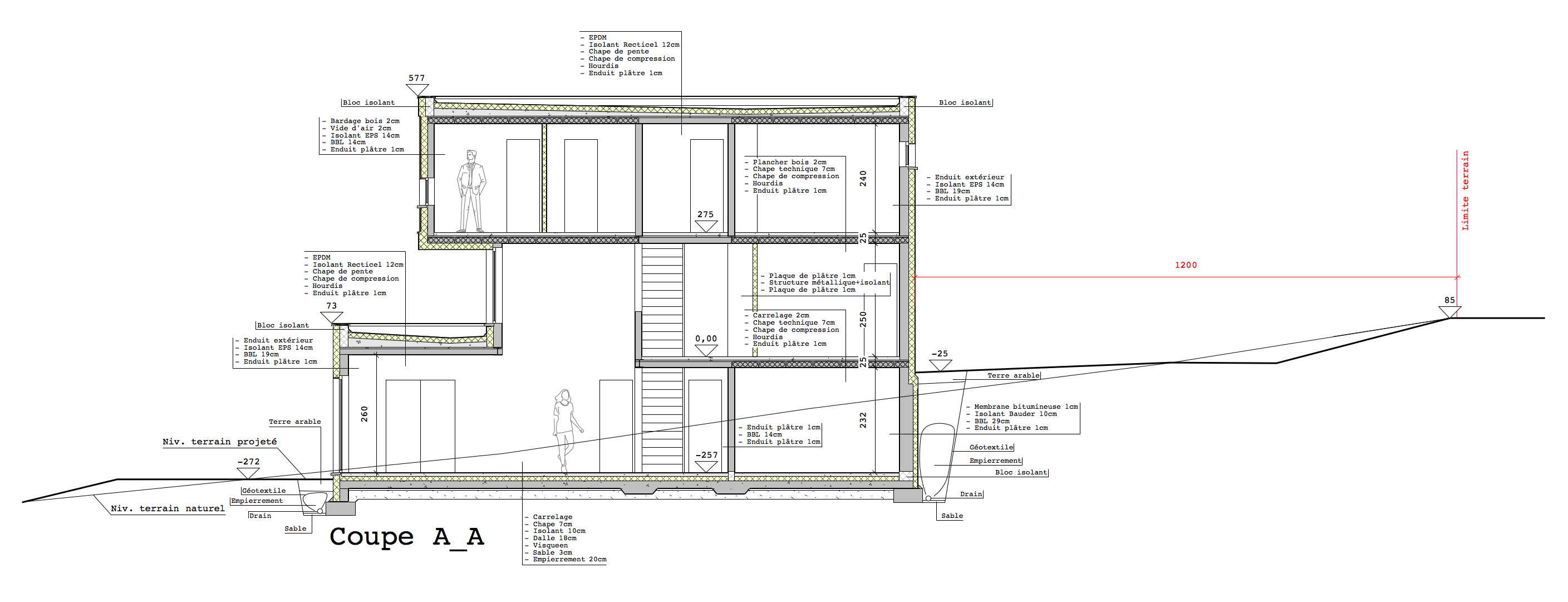
Construction d'une habitation unifamiliale semi-enterrée
Année : 2021 - 2024
Surface : 230 m2











L'intervention utilise la dénivellation naturelle du terrain par l'aménagement d'un volume de vie semi-enterré en raccord avec le niveau arrière du jardin. L'inertie naturelle du sol contribue à l'isolation du bâtiment.
La façade jardin est orienté plein Sud et laisse entrer généreusement le rayonnement solaire par de grandes ouvertures afin de participer activement au réchauffement naturel des espaces internes.
A l'étage, la chambre principale se projette sur le paysage environnant.